800-495-0488

More Views

  • APS1816
  • APS1816
  • APS1816
  • APS1816

House Plan #APS1816

Be the first to review this product

Availability: In stock

$0.00

Quick Overview

This timeless two-story home has touches of craftsman style. The siding exterior is accented with craftsman details and

* Required Fields

$0.00

Details

This timeless two-story home has touches of craftsman style. The siding exterior is accented with craftsman details and

Additional Information

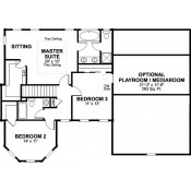
Overall Living Sq Ft 1897
Plan Type House
Bedrooms 4
Full Baths 3
Half Baths N/A
Garage Stalls 3
Levels 2
Width Feet 52
Width Inches 0
Depth Feet 40
Depth Inches 4
Ridge Height 27'-6"
Main Ceiling Height 323
Secondary Ceiling Height N/A
Wall Construction 2x6
Exterior Finish Siding
Floor One Sq Ft 995
Floor Two Sq Ft 902
Floor Three Sq Ft 0
Bonus Sq Ft 263
Basement Sq Ft 0
Porches Sq Ft 0
Garage Sq Ft 0
Total Covered Sq Ft 0
Main Roof Pitch 12:12
Foundation Basement , Basement
Master Bedroom Floor 2
Laundry Floor 1
Additional Information No
Ordering Comments

**Please see general specifications above to see what foundation type is available at no extra charge. Optional foundations may be available for an additional fee if not listed above please contact Customer Service for more information.

Additional Construction Licenses can be purchased for $100 each additional license.
Other Features N/A
Categories: Craftsman, Victorian, Cape Cod - New England